
Scale Drawings
Quiz by MELINDA KENNEDY
Feel free to use or edit a copy
includes Teacher and Student dashboards
Measure skillsfrom any curriculum
Measure skills
from any curriculum
Tag the questions with any skills you have. Your dashboard will track each student's mastery of each skill.
With a free account, teachers can
- edit the questions
- save a copy for later
- start a class game
- automatically assign follow-up activities based on students’ scores
- assign as homework
- share a link with colleagues
- print as a bubble sheet
10 questions
Show answers
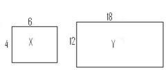
- Q1Figure Y is a dilation of Figure X. Which scale factor was used to create Figure Y?3120s
- Q2Louie made a scale drawing of his room on grid paper, as shown. If each square on the grid paper represents a side length of 3 feet, what is the length, in feet, of the longest wall in his room?21120s
- Q3The scale on a roadmap indicates that 2 inches = 20 miles. How many inches would represent 140 miles on this roadmap?14120s
- Q4A scale model of an airplane has a wingspan of 7 inches. In real life, the same airplane has a wingspan of 42 feet. What is the scale factor of the model to real life?6 inches = 1 foot1 inch = 6 feet1 inch = 7 feet6 inches = 6 feet120s
- Q5The object in Figure JKLM is a dilation of the object in figure EFGH. Which scale factor was used to create the object in Figure JKLM?2120s
- Q6On a map of Georgia, the legend reads 1 inch = 25 miles. If the distance between Atlanta and Savannah is approximately 110 miles, what is the distance on the map, in inches, between the two cities?4.4120s
- Q7An engineering firm is working on a building project. The building is supposed to be 18 meters tall. If they're using a scale of 1 millimeter = 6 millimeter, how many millimeters tall should the building be in the drawing?3120s
- Q8A model rocket is built to the scale 1:30, or 1 inch = 30 feet. The actual rocket is 6240 feet tall. How tall is the model rocket in inches?208120s
- Q9Anthony is visiting Mexico and doesn't know his Spanish numbers. On the map, he is 3 inches away from his destination. From the road sign ahead he knows that he is 9 miles away from his destination. What scale is the map using?1 inch = 2 miles1 inch = 3 miles1 inch = 5 miles1 inch = 1 mile120s
- Q10Evan's dad has a to-scale model of a space rocket. The rocket is 2 inches tall. His dad tells him that the real rocket was 4 yards tall. What scale does the model use?1 inch = 4 yards1 inch = 2 yards1 inch = 1 yard1 inch = 5 yards120s
